Loading timer

LTSV > Rail Data > More > Reviews List > Review Details
Title:Railway Wagon Plans, 1960s to the Present Review image
Author:John L Fox
Publisher:Ian Allan
Format:Book
Subject:Wagons
Category:Drawings
Spec:190 pages, A4-sized, hard-back, 138 colour photos, numerous drawings. ISBN: 978-0-7110-3843-1
Publication date:2016
Summary:A unique collection of highly-detailed drawings of 60 modern wagon types, all drawn by the author.
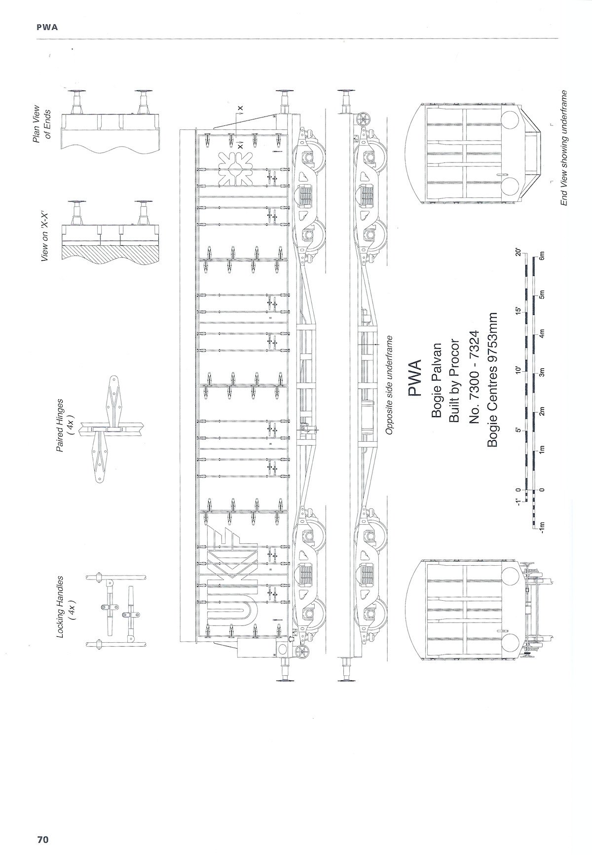
Review:As far as I know there has never before been a book containing more than a handful of drawings of modern wagons. Several books include some railway-owned types, while a few private owner wagons have appeared here and there. For the most part, the only drawings of many recent wagon types are the ones (often basic) to be found on wagon manufacturer's websites. This new book is therefore unique, but the title is slightly deceptive as the majority of the subjects are very modern. The most recent are the FWA container flat of 2012 and the MVA box wagon conversion from 2015. The oldest types appear to be the BAA steel wagons (1972), JHA Brett hoppers (1970), PAB petroleum coke hoppers (1970), PWA fertiliser vans (1975) and TTB caustic soda tank wagons (1971). The only type that dates back to the 1960s is the TTA oil tank from 1966. As this list shows, both railway-owned and private wagons are included among the 60 types represented. Each is illustrated with a handful of colour photographs (usually including close-ups of particular details) and a large number of superb drawings, mainly reproduced at a scale of 1:76.2. Most types have a plan view, elevations (often of both sides and both ends), sections, additional drawings for variations and enlargements of detailed parts. The drawings are not dimensioned but a scale is included. The price tag of £27.50 may seem a bit steep, particularly if you are a modeller seeking details on just a few of the types. However, the drawings are excellent and the book is recommended to anyone interested in modern wagons.
Reviewed:10/07/2016 by Thomas Young (Comments made by others can appear in the notes section towards the bottom of this page)
Sample pages:(Click on any image to view full-sized in a new window)
Page image Cover
Page image The drawings are highly detailed, with mulitple views, sections and enlargements.
Page image Each type also has a few photographs, often including useful detail view.
Notes: No notes have been left yet. ?There may be some notes posted but which have not yet been approved.
Edits:This item has not been edited.